Короче говоря
-
В Минске нашлись однокомнатные квартиры, которые еще считаются бюджетными, но с неплохой обстановкой – заселяться можно сразу.
-
Некоторые варианты – с мебелью и приличной бытовой техникой.
-
По расположению – в разных районах города, есть жилье и недалеко от метро.
Причем некоторые варианты недалеко от метро и в относительно "свежих" домах.
Улица Плеханова (Ленинский район)
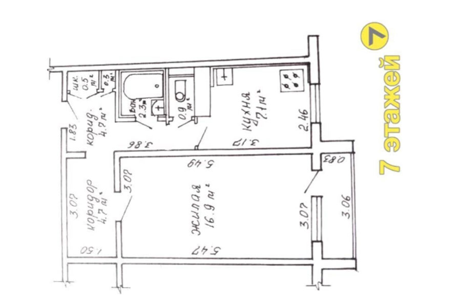
Квартира находится в девятиэтажке на Плеханова, 95. Дом возвели в 1990 году. Жилье расположено на третьем этаже и занимает 33,1 м², на кухню отведено 7,1 "квадрата".

Квартира в хорошем состоянии: в окнах – стеклопакеты, на полу – ламинат и плитка.
Кухня оборудована с бытовой техникой. Из комнаты имеется выход на застекленный балкон. Санузел и ванная облицованы плиткой.
Рядом с домом есть остановки транспорта, продуктовый магазин, с двух сторон расположены парки.
Стоимость квартиры составляет $74,9 тыс. Цена "квадрата" – $2,26 тыс.
Улица Космонавтов (Московский район)
"Однушка" на шестом этаже продается в девятиэтажном доме на Космонавтов, 23/2. Его возвели в 1986 году. Площадь квартиры – 37,4 м², а кухни – 7,1 м².

Тут хороший ремонт, который позволяет сразу заехать и жить. "Фишка" квартиры – в двух коридорах. Один из них можно использовать как гардеробную. Из комнаты есть выход на застекленный балкон.
В окнах – стеклопакеты, на полу – деревянное покрытие. Санузел совмещенный, с душем.
От дома недалеко до станции метро "Малиновка".
Цена квартиры составляет $76,9 тыс. Один квадратный метр обойдется в $2,056 тыс.
Улица Игнатовского (Фрунзенский район)
На последнем этаже девятиэтажки на Игнатовского, 12, выставлена на продажу квартира площадью 33,4 м² с кухней на 7,2 "квадрата". Дом построен в 2010 году.

Квартира полностью готова к проживанию. Здесь сделан косметический ремонт, на полу лежат плитка и ламинат. Из кухни есть выход на застекленную лоджию. Санузел совмещенный.
До станций метро "Каменная Горка" и "Кунцевщина" примерно 10 минут езды на общественном транспорте.
Квартиру оценили в $72,5 тыс., а квадратный метр обойдется в $2,171 тыс.
Улица Казинца (Октябрьский район)
В 1983 году на Казинца, 70, построили девятиэтажный жилой дом. В 2020-м там прошел капремонт. Сейчас на шестом этаже продается однокомнатная квартира площадью 29,03 м². На кухню отведено 7,13 м².

Жилье с хорошим ремонтом: на полу лежит линолеум, сделан натяжной потолок, стены оклеены обоями. В кухне уже есть гарнитур, а в прихожей стоят два шкафа, один из них – с раздвижными зеркальными дверями.
Из комнаты имеется выход на застекленный балкон. Санузел раздельный.
Поблизости есть парк Курасовщина и Лошицкое водохранилище. До станции метро "Слуцкий Гостинец" 30 минут пешком или несколько остановок на транспорте.
За квартиру просят $68 тыс. Получается, квадратный метр стоит $2,342 тыс.
Улица Гинтовта (Первомайский район)
Эта однокомнатная квартира находится в девятиэтажке на Гинтовта, 18. Дом построен в 1990 году. Квартира расположена на седьмом этаже и занимает 35 "квадратов". Площадь кухни – 7 м2.

Жилье в хорошем состоянии, но до санузла у хозяев руки не дошли.
Кухня идет со встроенной мебелью и техникой: посудомойкой и варочной панелью Bosch, духовым шкафом Electrolux и холодильником Samsung.
В жилой комнате есть выход на застекленную лоджию, где утеплен пол, установлены стеклопакеты. Остаются в "однушке" кондиционер Gree и встроенный шкаф-купе в прихожей.
Рядом есть парк, остановки транспорта. До станции метро "Уручье" можно дойти пешком.
Цена квартиры – $75,8 тыс. А квадратный метр обойдется в $2,166 тыс.